Código do Imóvel: 00009

Finalidade: Comprar

Residência Flora

Bairro Cedro do Libano, Uberlândia

Valor do Imóvel

R$420000,00

Valor do Condomínio

R$0,00

Descrição Completa

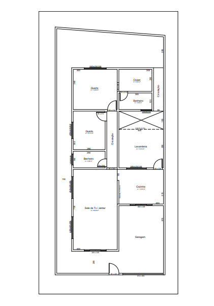
Residência Flora – entrega prevista para março de 2026 Um projeto pensado para quem busca conforto, leveza e um lar com identidade. A Residência Flora combina modernidade e funcionalidade em cada detalhe: são 3 quartos, sendo 1 suíte com closet, além de sala de estar, sala de jantar, cozinha ampla, lavanderia e garagem. Um imóvel novo, bem distribuído e pronto para receber uma família que gosta de viver bem. Perfeito para quem quer investir em qualidade de vida sem abrir mão de praticidade. Se você procura um lugar para chamar de seu, esse é o momento de garantir a sua.

Localização Exata

Ficou interessado?

Entre em contato agora mesmo

Imóveis Similares

Comprar

casa três quartos

Bairro Cedro do Libano

R$ 380.000,00

Comprar

Vargem a venda

Bairro Zona Rural

R$ 1.000.000,00

Comprar

lote a venda no Cedro do Libano

Bairro Cedro do Libano

R$ 55.000,00

Comprar

lote Cedro do Líbano

Bairro Cedro do Libano

R$ 90.000,00

Comprar

Lote condominio Portal da Serra

Bairro Portal da Serra

R$ 250.000,00

Comprar

chacara

Bairro Zona Rural

R$ 199.000,00